Qui sommes nous ?
A venir
Les études historiques
Le 2° cuirassier aux 5 avenues
Les fortifications
La fin du char Jeanne d'Arc
Nous contacter
La libération des iles du Frioul
Les fortifications de Ratonneau
Les liens utiles
les Blockhaus allemands
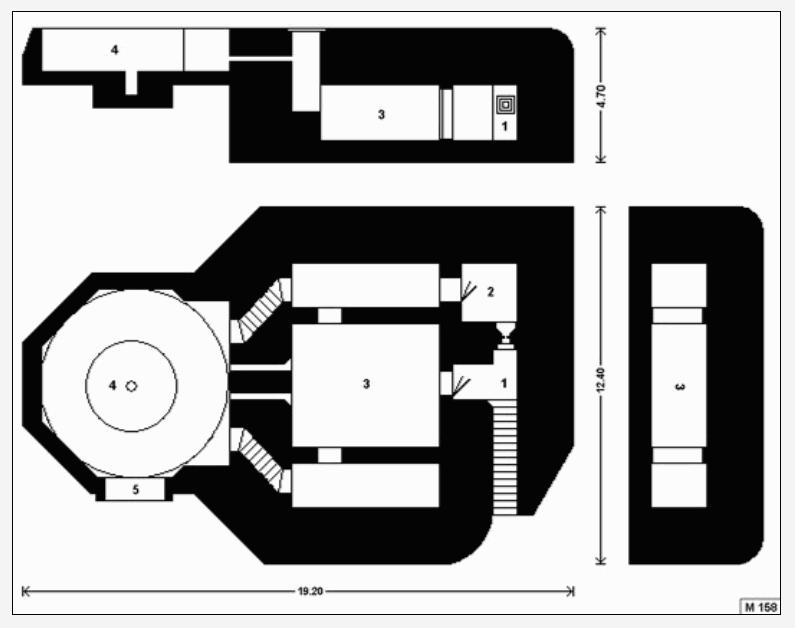
M158 pour canon
Poste de Tir M162A
R669 pour canon
S542 pour canon de 240mm
M272 pour canon
Quelques oeuvres d'art
Quelques objets
Nos activités
Animations aux journées du patrimoine
Sortie Ile Verte 2012
repas avec Claude Bonard
La Provence parle de nous
Le mystere des croix du Frioul
Accueil
Sortie Verduron haut Moulin du Diable
les membres/adhérer
char ORLEANS
Conference 3 ponts
Radar Sainte Croix La Couronne
Guerres et Histoire N25
Visite batterie Fenouil avec Ancrage
Sortie aux îles du Frioul
Demande de classement du bunker FENOUIL
Bibliographie
Les balades fortifications
Balade à la calanque de Marseilleveyre
Détours en France 01 2018
Iles du Frioul L'histoire
Liberation de Notre Dame de la Garde
Journées Européennes du Patrimoine
formation Parc National des Calanques
printemps des calanques 2019
FMBR Association des Fortifications de Marseille et des Bouches du Rhône
©
2023 Association FMBR
Zone éditable
1
2
Zoom
100731061117242426494658[1].gif
2075.88 Ko, 01/05/2013
Zoom
100817032618242426579906[1].jpg
42.69 Ko, 01/05/2013
Zoom
100731061118242426494661[1].jpg
15.94 Ko, 01/05/2013
Zoom
100731061118242426494662[1].gif
1783.88 Ko, 01/05/2013
Zoom
100731061117242426494657[1].gif
1604.71 Ko, 01/05/2013
Zoom
100731061118242426494660[1].gif
1798.17 Ko, 01/05/2013
1
2